
Star Technologies
Hi Temp Clamp | 5420SS16HT120X | STAR TECHNOLOGIES
Hi Temp Clamp | 5420SS16HT120X | STAR TECHNOLOGIES
Ashcon International Inc.
1070 Heritage Rd
Burlington ON L7L 4X9
Canada
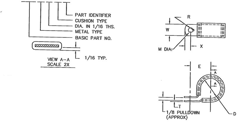
PART NO. |
D DIA. |
E DIM. ± .03 |
M. DIA |
T ± .005 |
W |
R |
X |
5420SS16HT120X |
1.00 |
1.031 |
.343 |
.040 |
3/4 |
1/2 |
.375 |
METAL:
A= 2024 ALUMINUM PER QQ-A-250/5F
HEAT TREAT TO T42 CONDITION
SS=STAINLESS STEEL 300 SERIES COMM. GRADE
S= 1010 STEEL, PER QQ-S-698
ZINC PLATE PER QQ-Z-325 TYP. 1 CLASS
CUSHION:
N= NEOPRENE PER AMS 3209
HT= SILICONE PER AMS3303 MODIFIED
TO 100 LBS. PER INCH TEAR COLOR RED
E= EPDM